DALINIS INTERJERO PROJEKTAS
mažesnės apimties projektas, kurį sudaro reikalingiausi techniniai planai statybiniams darbams atlikti, vadovaujantis paruoštu 3D namų projektu.
KONCEPCIJA IR 3D PROJEKTAVIMAS
Kiekvieną projektą pradedame nuo 3D namų modelio kūrimo. Taip galime įvertinti įvairius išdėstymo sprendimus, suplanuoti paslėptą apšvietimą, rozečių vietas pagal tikslų baldų išdėstymą bei numatyti praktiškas zonas robotams siurbliams, lyginimo vietoms ir kitiems kasdien svarbiems dalykams. Prisitaikant prie Jūsų norimos stilistikos, parengiame ir interjero viziją, todėl 3D projektas tampa puikiu pagrindu, padedančiu lengviau rinktis baldus, spalvas bei derinti medžiagas tarpusavyje.


TECHNINIAI BRĖŽINIAI
Pagal pasirinktą namų išplanavimą, kuris labiausiai atitinka jūsų poreikius, pradedame rengti svarbiausius techninius planus:
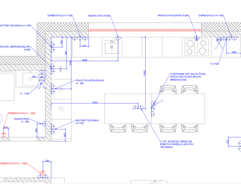
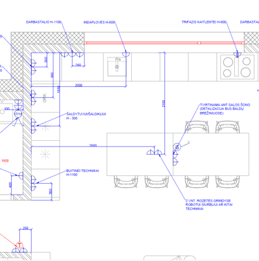
2D baldų išdėstymo planas
Durų varstymo planas
Lubų, pertvarų planas
Santechnikos planas
Apšvietimo išdėstymo, apšvietimo scenarijaus planas
Difuzorių planas
Laidų aprašymo planas
Jungiklių/kištukinių rozečių planas

