KORPUSINIŲ, INDIVIDUALIAI GAMINAMŲ BALDŲ PROJEKTAVIMAS
Projektas sukurtas tiems, kurie įsigijo būstą su pilna apdaila, bet nori jam suteikti jaukumo ir vientisumo – suderinti grindis, duris, sienų spalvas ir viską sujungti į harmoningą namų visumą.
KONCEPCIJA IR 3D PROJEKTAVIMAS
Baldus projektuojame 3D formatu, kad galėtumėte lengvai įsivaizduoti, kaip jie atrodys Jūsų erdvėje. Dažnai pateikiame kelis variantus, iš kurių galite išsirinkti labiausiai atitinkantį Jūsų poreikius.


MEDŽIAGŲ PARINKIMAS
Po 3D projektavimo atvykstame į Jūsų namus – kartu išsirenkame fasadų medžiagas, tinkamiausią stalviršį ir aptariame visus svarbius niuansus: stalčių kiekį, buitinės technikos vietas bei kitas detales.


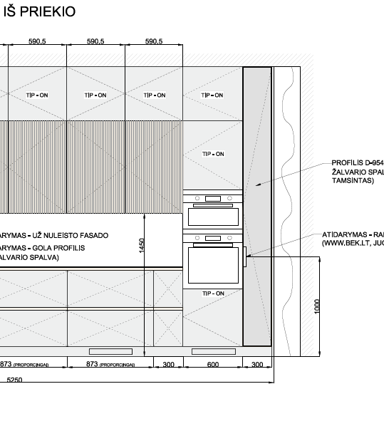
BRĖŽINIŲ PARUOŠIMAS BALDŲ GAMINTOJAMS
Kai baldų išdėstymas ir visos detalės suderintos, ruošiame techninius brėžinius baldų gamintojams su aiškiai nurodytomis medžiagomis, rankenėlėmis, furnitūra ir kitomis svarbiomis detalėmis. Tai leidžia Jums sutaupyti laiką ir lengviau gauti tikslų kainos pasiūlymą iš kelių gamintojų.

