PILNAS INTERJERO PROJEKTAS
PAGAL NUMATYTĄ KONCEPCIJĄ PROJEKTUOJAMI NAMAI 3d FORMATU IR RUOŠIAMI TECHNINIAI BRĖŽINIAI, REIKALINGI STATYBINIAMS DARBAMS ATLIKTI. VĖLIAU RUOŠIAME VIZUALIZACIJAS, GAMINAMŲ BALDŲ BRĖŽINIUS, PARENKAME GRINDIS, PLYTELES BEI KITUS SVARBIUS NAMŲ ELEMENTUS.


KONCEPCIJA IR 3D PROJEKTAVIMAS
Kiekvieną projektą pradedame nuo 3D namų modelio kūrimo. Taip galime įvertinti įvairius išdėstymo sprendimus, suplanuoti paslėptą apšvietimą, rozečių vietas pagal tikslų baldų išdėstymą bei numatyti praktiškas zonas robotams siurbliams, lyginimo vietoms ir kitiems kasdien svarbiems dalykams. Prisitaikant prie Jūsų norimos stilistikos, parengiame ir interjero viziją, todėl 3D projektas tampa puikiu pagrindu, padedančiu lengviau rinktis baldus, spalvas bei derinti medžiagas tarpusavyje.
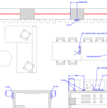
TECHNINIAI BRĖŽINIAI
Pagal pasirinktą namų išplanavimą, kuris labiausiai atitinka jūsų poreikius, pradedame rengti svarbiausius techninius planus:
2D baldų išdėstymo planas
Durų varstymo planas
Lubų, pertvarų planas
Santechnikos planas
Apšvietimo išdėstymo, apšvietimo scenarijaus planas
Difuzorių planas
Laidų aprašymo planas
Jungiklių/kištukinių rozečių planas


INDIVIDUALIAI GAMINAMŲ, KORPUSINIŲ BALDŲ BRĖŽINIAI
Ruošiame išsamius individualiai gaminamų baldų brėžinius ir pasirūpiname viskuo – nuo furnitūros bei mechanizmų iki fasadų, stalviršių ir rankenėlių. Tokiu būdu jums nereikia ieškoti sprendimų pas skirtingus baldų gamintojus – viską suderiname už jus.


INTERJERO DETALIŲ PARINKIMAI
Pagal suderintą stilistiką parenkame visus namų apdailos ir dekoro elementus, užtikrindami vientisą interjero išraišką.
Grindų dangos medžiagos, grindjuostės
Plytelės ir glaistai
Sienų dangos ir spalvos
Santechnikos prietaisai
Durų tipas ir spalva
Minkštųjų baldų, šviestuvų, veidrodžių, kilimų, valgomųjų stalų, kėdžių, žurnalinių staliukų parinkimas (iki 3-5 variantų. Pateikimas siunčiamas užsakovui internetinėmis nuorodomis).
Pasirinkus mūsų siūlomus baldus, vykstame gyvai į salonus derinti jų medžiagiškumo ir spalvų.
Jeigu pateikti variantai netenkina, užsakovas gali rinktis savarankiškai – dizaineris padeda priimti sprendimą, įvertinant tiek estetinius, tiek funkcinius aspektus. Derinimas vyksta el. laiškais arba gyvo susitikimo metu objekte


VIZUALIZACIJOS
Remiantis parinktomis medžiagomis, grindimis ir plytelėmis, ruošiame realistines vizualizacijas, kurios padeda pamatyti, kaip atrodys Jūsų būsimi namai. Svarbu žinoti, kad tai – kompiuteriniai vaizdai, todėl spalvos ir tekstūros gali šiek tiek skirtis nuo realybės. Tiksliausią įspūdį suteikia gyvi medžiagų pavyzdžiai, kuriuos pristato dizainerė.


DARBŲ PRIEŽIŪRA IR SUSITIKIMAI
Dizainerės du kartus vyksta į objektą (neįskaitant matavimų) bei vieną kartą susitinka su užsakovu gyvai salonuose, kad kartu parinktų medžiagas. Objekte susitikimų metu aptariami iškilę klausimai meistrams, tikrinamos jungiklių ir kištukinių lizdų pozicijos pagal mūsų brėžinius. (Taikoma Vilniaus rajone esantiems objektams.)
Esant poreikiui, galima susitarti dėl dažnesnių atvykimų į objektą.

